0%, budynek wielorodzinny w Radzyminie na 2026r
Radzymin Pokaż na mapie ›
Dodane: Poniedziałek, 09 Luty, 2026 19:15
434 560 zł
11436 zł/m2
Szczegóły ogłoszenia
- Kategoria: Mieszkania / Sprzedaż
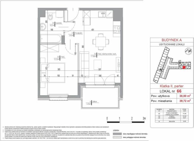
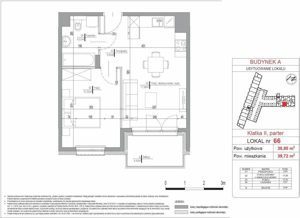
- Powierzchnia:38 m2
- Liczba pokoi:2 pokoje
- Zabudowa:Blok
- Tech. budowy:Inne
- Piętro :Parter
- Liczba pięter:5 pięter
- Rynek:Wtórny
- Rok budowy:2026
- Sprzedaż:Pośrednik
- Inf. dodatkowe:Balkon
- Cena: 434 560 zł / 11436 zł/m2
Opis oferty
0% - kupując nie płacisz prowizji !!!Kliencie! W związku z prowadzoną bieżącą sprzedażą,
zastrzegamy, że aktualność i cena może ulec zmianie do czasu
dokonania przez Ciebie pisemnej rezerwacji oferty.
Budynek A, klatka II, lokal nr 66 , balkon: 4,49 m
Pełne zestawienie oferowanych mieszkań z tej inwestycji n stronie
brokera pod linkiem: www.homeplus.pl/,1405/78/OI
Przypisane do mieszkania m-ce parkingowe w garażu podziemnym ( poziom
-1 oraz na poziomie 0 ) - PŁATNOŚĆ DODATKOWA - 35.000 zł,
komórka lokatorska nie jest przypisana do mieszkania
Komórki lokatorskie w inwestycji - pow. od 1,71 m do 3,82 m
Inwestycja etapowa.
W I etapie zostaną wybudowane dwa VI kondygnacyjne budynki oznaczone
numerem A i B o łącznej ilości mieszkań 154, garażami
podziemnymi, miejscami parkingowymi naziemnymi i pomieszczeniami
gospodarczymi.
W budynku A zostanie wybudowanych 102 lokalne mieszkalne, w parterze
budynku zaprojektowano powierzchnię handlowo-usługową. W budynku B
zostanie wybudowanych 54 lokali mieszkalnych. Z myślą o
najmłodszych na terenie osiedla powstanie plac zabaw dla dzieci.
Spójna architektonicznie zabudowa i wysoki standard wykończenia
sprawi, że osiedle będzie atrakcyjnym miejscem do zamieszkania.
Osiedle znajduje się w odległości zaledwie 12 km od akwenu wodnego
– Zalew Zegrzyński. Jest on miejscem znanym i odwiedzanym przez
całe rodziny, które lubią nad nim wypoczywać i spędzać wolny
czas. Ponadto, pobliskie lasy sprzyjają pieszym wędrówkom i
wycieczkom rowerowym. Radzymin łączy w sobie uroki mieszkania na wsi
z wygodami życia w mieście.
Łatwy dojazd do osiedla "starą" obwodnicą Radzymina i łatwy dojazd
do S8.
Do centrum Warszawy ( Pl. Bankowy ) 23 km.
Do Radzymina dojeżdża linia autobusowa nr 708 ( pętla autobusu 200
m od osiedla ), od stycznia 2020 r. kursuje pociąg podmiejski ( z
W-wy Gdańskiej ).
Radzymin to kameralne, a jednocześnie prężnie rozwijające się
miasto, z bogatą historią.
___________RODO : HOMEPLUS Nieruchomości z siedzibą w (05-250)
Radzyminie, Al. Jana Pawła II 1B, informuje Państwa, iż podanie
danych jest dobrowolne, ale niezbędne w celu świadczenia usług
pośrednictwa w obrocie nieruchomościami przez nasze biuro.
Posiadają Państwo prawo dostępu do treści swoich danych i ich
sprostowania, usunięcia, ograniczenia przetwarzania, prawo do
przenoszenia danych, prawo do cofnięcia zgody w dowolnym momencie bez
wpływu na zgodność z prawem przetwarzania.
- Dane mogą być udostępniane przez HOMEPLUS podmiotom upoważnionym
do uzyskania informacji na podstawie przepisów ustawy z 21.08.1997 r.
o gospodarce nieruchomościami (Dz.U. z 2016 r. poz. 2147 ze zm.).
- Podane dane będą przetwarzane na podstawie art. 6 ust. 1 pkt a) i
zgodnie z treścią ogólnego rozporządzenia o ochronie danych.
- Administratorem danych jest HOME PLUS – Ireneusz Kurzyński oraz
HOME PLUS - Małgorzata Kosińska z siedzibą w Radzyminie , Al. Jana
Pawła II 1B, e-mail: @ Przekazane przez Państwa
osobowe będą przechowywane przez okres niezbędny do wykonania umowy
oraz dodatkowo przez okres wynikający z przepisów o przedawnieniu
roszczeń – w celu ewentualnej ochrony prawnej administratora. Nie
później niż rok po upływie tego okresu dane osobowe zostaną
trwale usunięte z systemów informatycznych, a dane papierowe –
trwale zniszczone. Mają Państwo prawo wniesienia skargi do Prezesa
Urzędu Ochrony Danych Osobowych (PUODO), gdy uznacie Państwo, iż
przetwarzanie podanych przez Państwa danych osobowych narusza
przepisy ogólnego rozporządzenia o ochronie danych osobowych z dnia
27 kwietnia 2016 r. (RODO).
---------------------
UWAGA!*Powyższe informacje nie stanowią oferty w rozumieniu Kodeksu
Cywilnego. HOMEPLUS Nieruchomości nie ponosi odpowiedzialności za
dokładność, kompletność i aktualność prezentowanych obiektów,
staramy się jednak, aby informacje dotyczące ofert były możliwie
najbardziej kompletne i aktualne.
Sprawdź zainteresowanie tym ogłoszeniem
Wyświetlenia
Data dodania
Ostatnio widziany
Obserwujących
Wysłane zapytania
Odsłony telefonu
Powiadom o podobnych ogłoszeniach
Lokalizacja: Radzymin
Kategoria: Nieruchomości » Mieszkania » Sprzedaż
Cena: od 369500 zł do 499500 zł Powierzchnia : od 32 m2 do 44 m2
Chcę otrzymywać powiadomienia o nowych ofertach
Ireneusz Kurzyński
Konto firmowe
Na Lento.pl od 03 mar 2021
Odpowiada szybko
Strona użytkownika
- Wypromuj ogłoszenie
- Zgłoś naruszenie
- Drukuj ulotkę
- Edytuj/usuń ogłoszenie
- Udostępnij ogłoszenie
- Dodaj na Facebook









